全国咨询热线
021-65371228
电动调节阀
电动阀
气动调节阀
电动阀门
气动阀门
电磁阀系列
化工耐腐阀门系列
衬氟三通球阀
水力控制阀系列
球阀系列
造纸行业通用阀门
减压阀系列
通用阀门系列
低温阀系列
电动阀门执行器及附件
气动阀门执行器及附件
电话:021-65371228
传真:021-65371707
邮箱:mdfamen@163.com
地址:上海金山区漕泾镇合展路188号
ZZYVP型 自力式微压调节阀
一、产品概述
ZZYV(P)自力式微压调节阀(带指挥器) 外加能源,利用被调介质自身能量为动力源,自动控制阀门介质流量,使阀后压力保持恒定的压力稳定装置。现已应用于连续送气的天然气采输,城市煤气以及储罐氮封系统和冶金、石油、化工等工业生产部门。
阀特点:可比一般直接操作型调压阀高一左右。调节压差比大(如阀前0.8MPa、阀后0.001MPa)适合微压气体控制。压力设定在指挥器上实现,因而方便、快捷、省力省时可在运行状态下连续设定。 带指挥器的阀门适用于氮封装置(氮封阀),供(泄)氮压力设定方便,可在连续生产的条件下进行。氮气压力设定,0.5Kpa(50mm.w.c),比值达132,压力检测膜片面积大,设定弹簧刚度小,动作敏。
二、自力式微压调节阀结构及零件材料
供氮装置 泄氮装置 结构图
1、主阀;2、主阀阀芯 3、主阀执行机构 4、节流阀 5、减压阀 6、指挥器阀芯 7、检测机构 8、预设弹簧 9、指挥器
零 件 名称
材料
阀体
WCB, 不锈钢304/316L
阀杆、阀芯、阀座
1Cr18i9Ti
膜片
丁腈橡胶夹增强绦纶织物
弹簧
60Si2Mn
波纹管
三、技术参数
公称通径DN(mm)
20
25
32
40
50
65
80
100
额定流量系数(KV)
8
11
160
额定行程(mm)
6
10
15
公称压力PN(MPa)
0.10
压力调节范围(KPa)
0.5∽5.5、5∽10、9∽14、13∽19、18∽24、23∽28 27∽33、31∽38、36∽44、42∽51、49∽58、56∽66
介质温度(℃ )
-20~+100℃
调节精度(%)
≤3
允许泄漏量(L/h)
10ˉ4×阀额定容量(符合 ANSIB16.104-1976 IV 级
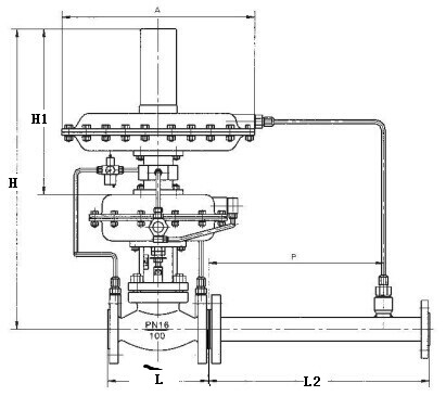
四、外形尺寸(mm)
公称通径 (DN) 15 20 25 32 40 50 65 80 100 125 150 法兰端面距 (L) 145 150 160 180 200 230 290 310 350 400 480 H 600 610 610 630 630 640 710 720 730 800 930 H1 330 330 330 350 350 360 430 440 450 520 650 A 310 400 法兰尺寸: D 95 105 115 140 150 165 185 200 220 250 285 D 1 65 75 85 100 110 125 145 160 180 210 240 D 2 45 56 65 76 84 99 118 132 156 184 211 n-d 4-14 4-18 8-18 8-22
公称通径 (DN)
125
150
法兰端面距 (L)
145
180
200
230
290
310
350
400
480
H
600
610
630
640
710
720
730
800
930
H1
330
360
430
440
450
520
650
A
法兰尺寸:
D
95
105
115
140
165
185
220
250
285
D 1
75
85
110
210
240
D 2
45
56
76
84
99
118
132
156
184
211
n-d
4-14
4-18
8-18
8-22
法兰标准:GB9113-88 法兰 密封面型式:凸面; 信号接口:内螺纹M16X1.5。 阀体法兰及法兰端面距离可以按用户的标准制造。如ANSI、JIS、JPI等标准
衬氟隔膜阀
衬氟旋塞阀
衬氟放料球阀
衬氟止回阀H42F46
衬氟止回阀H44F46
衬氟止回阀H41F46
衬氟闸阀Z41F46
衬氟截止阀J45F46型