全国咨询热线
021-65371228
电动调节阀
电动阀
气动调节阀
电动阀门
气动阀门
电磁阀系列
化工耐腐阀门系列
衬氟三通球阀
水力控制阀系列
球阀系列
造纸行业通用阀门
减压阀系列
通用阀门系列
低温阀系列
电动阀门执行器及附件
气动阀门执行器及附件
电话:021-65371228
传真:021-65371707
邮箱:mdfamen@163.com
地址:上海金山区漕泾镇合展路188号
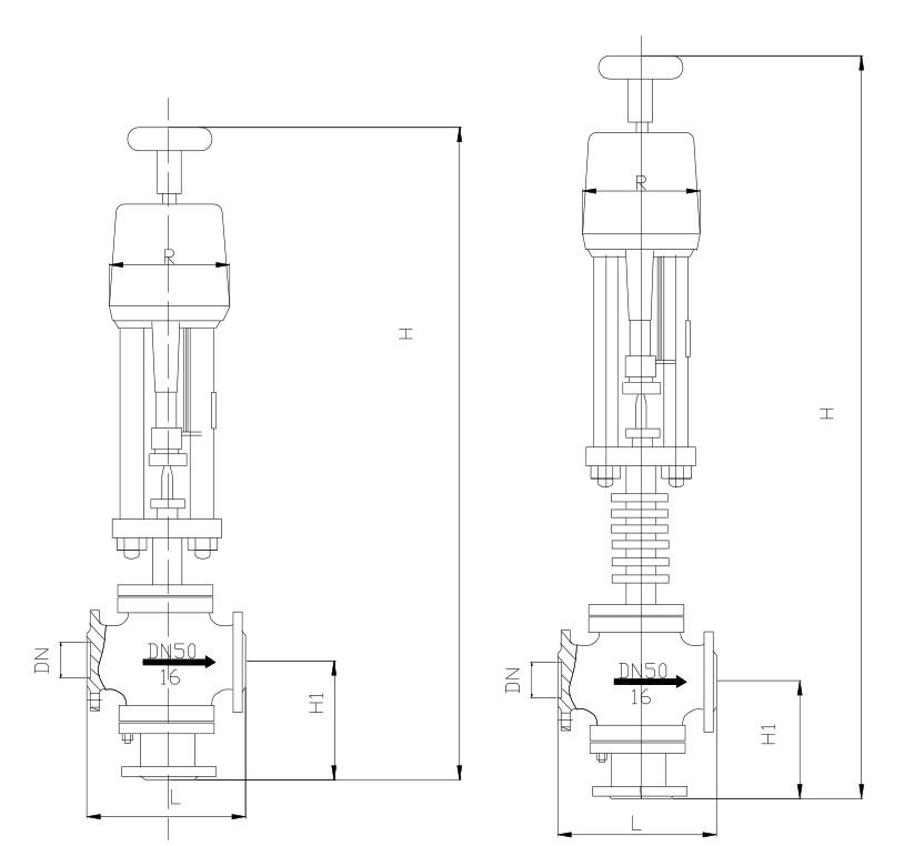
ZRSF(H)电动三通分(合)流调节阀采用双阀芯上下导 向结构,配用电动执行机构机构,阀体为三通结构,即一进两出(分流型),两进一出(合流型),从而达到流体混合升温或降温,或流体不等量分流,不同工矿的 使用要求。该阀体具有结构紧凑、重量轻、动作敏、压降损失小、阀容量大、流量特性和维修方便等优点。可用于不同的工作条件,适用于石油工业热交换器的温度控制 系统和其他的各行业的自动化控制系统。 本系列产品有常温型、高温型、低温型、调节切断型、波纹管密封型等多种型式。产品公称压力等有PN1.6、4.0 6.4; 阀体口径范围DN20-DN300;适用流体温度-150℃-+560℃范围 内多种档次;泄露等氛分为Ⅳ、Ⅴ、Ⅵ;流量特性有直线、等百分比。多种规格可供选择。
220VAC 50Hz
注:实际配置需根据具体工艺参数。如果允许压差一清楚或工作压差出列表范围,请与我们联系,采取适当方法可解决。
常温型 散热型
衬氟隔膜阀
衬氟旋塞阀
衬氟放料球阀
衬氟止回阀H42F46
衬氟止回阀H44F46
衬氟止回阀H41F46
衬氟闸阀Z41F46
衬氟截止阀J45F46型