全国咨询热线
021-65371228
电动调节阀
电动阀
气动调节阀
电动阀门
气动阀门
电磁阀系列
化工耐腐阀门系列
衬氟三通球阀
水力控制阀系列
球阀系列
造纸行业通用阀门
减压阀系列
通用阀门系列
低温阀系列
电动阀门执行器及附件
气动阀门执行器及附件
电话:021-65371228
传真:021-65371707
邮箱:mdfamen@163.com
地址:上海金山区漕泾镇合展路188号
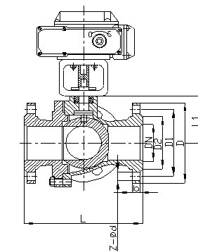
电动三通球阀由MDR或者MQT电动执行机构和三通球阀组成,是一种旋转类切断调节阀门, 具有关闭严密,结构紧凑,重量轻,维修方便等优点。用于气体、液体、蒸汽、油品等腐蚀性介质的管道自动化控制中。 Q944F电动L型三通球阀,具有结构紧凑、外型美观、密封性能好。它能实现对管道中介质流向的切换。也能使相互垂直的两个通道连通或关闭。 Q945F电动T型三通球阀具有造型美观、结构紧凑合理,它不但可实现介质流向的切换,也可使三个通道相互连通,现 时也可关闭任一通道,使另外两个通道连通,灵活控制管路中介质的合流或分流。
1.设计和制造:GB//T12237-1989; APl608 2.检验和试验:GB/T13927-1992; APl 598 3.法兰连接:JB/T79; ASME/ANSI B165 4.结构长度:JB-12221
三通球阀分L型和T型(Q944F或Q945F) ,介质流通方向见下图。L型三通球阀适用于介质流向的切换,能使相互垂直的两个通道连通:T型三通球阀适用于介质的分流、合流或流向 切换,T型孔道可以使三个通道互相连通或使其中两个通道连通,三通球阀一般采用两个阀座结构,亦可根据用户要求采用四阀座结构。
控制精度:0.1%~3.1%可调。 接受控制信号:0~10mA.DC、4~20mA.DC或1~5V.DC。 按键选择:1、输入信号中断时:“中断”模态(开、停、关)2、正逆动作选择3、控制精度选择。 电动装置全开、全闭位置自动定位标定,方便准确。 按输入信号和电动装置位置进行步距调整自动定位。 输出电动装置位置信号:4~20mA.DC对应电动装置全闭、全开。
衬氟隔膜阀
衬氟旋塞阀
衬氟放料球阀
衬氟止回阀H42F46
衬氟止回阀H44F46
衬氟止回阀H41F46
衬氟闸阀Z41F46
衬氟截止阀J45F46型